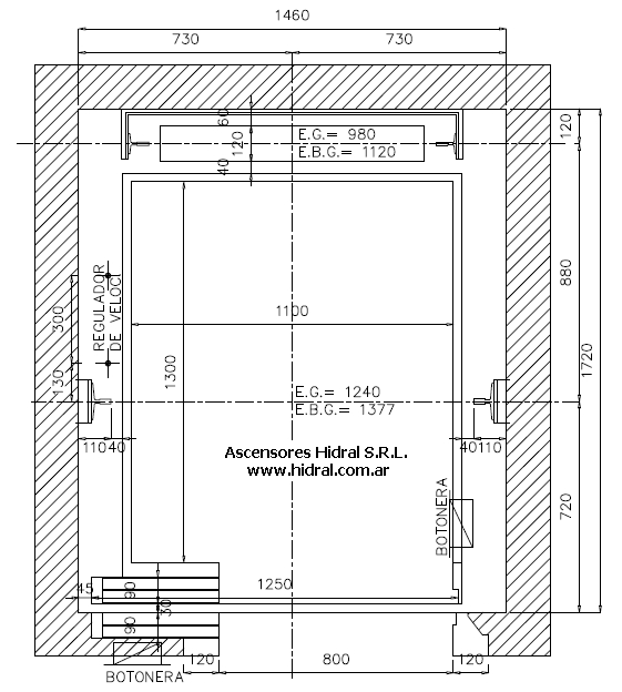
Pasadizo Ascensor - Convencional Simplex Contrapeso Fondo - 1 

Medidas de referencia. En todos los casos consulte y confirme con nuestra Oficina Técnica